您當前的位置:
來源:梵客家裝 關鍵詞:梵客家裝 小戶型 老房改造 開放式 室內設計 室內裝修 9364 2022-07-13
這是一個三口之家,女業主剛退休,女兒讀研。上次裝修還是夫妻二人結婚時,當時還設計了軟包、護墻板,也算是豪裝。隨著時間的推移,東西越來越多,家也越住越小,裝修的計劃開始提上日程…
建筑面積:78平
使用面積:59平
戶型:2室2廳1衛
風格:現代簡約、輕奢
居住人口:三口之家
業主要求:多儲物空間
改造前——
空間狹窄,采光不足,收納欠缺,色彩過時
客廳:獨立空間,距離門廳太遠,和外界互動不足,使用不便
門廳/餐廳:缺少收納空間,采光差

主臥:空間利用不合理,缺少儲物空間
次臥:面積狹小,收納空間太少
廚房:采光不佳,空間局促,收納不足

陽臺:沒有合理利用,基本閑置

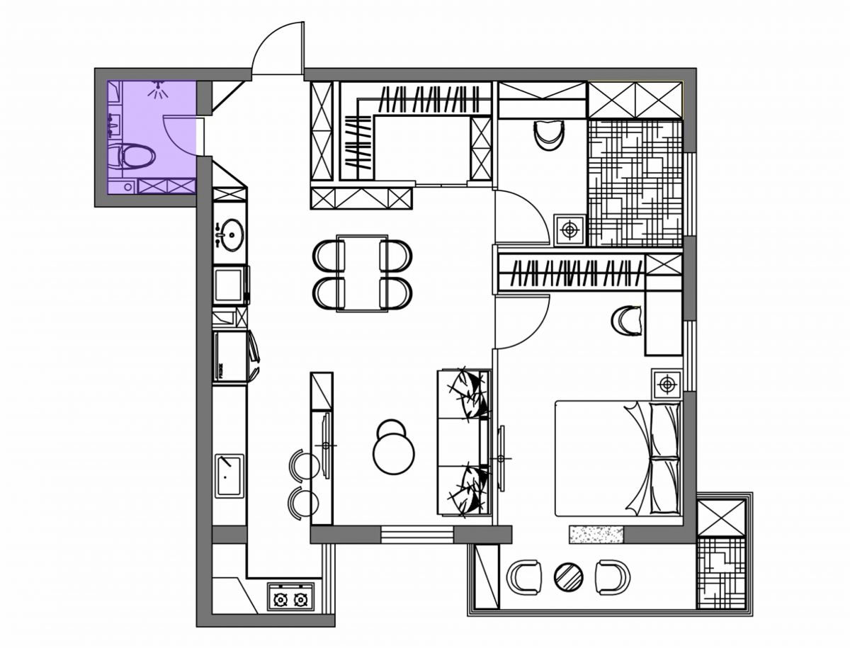
衛生間:空間小,布局不合理,使用不方便

經過數月精心打造,小家華麗變身…

業主說:“喜歡看北京電視臺生活+節目,看到梵客就約了測量,對設計師及方案也很滿意,就直接簽約了,提前定的裝修,后來漲價也沒受影響,第二年退休后直接開始裝修,非常省事。”


老戶型,有很多規劃不合理的地方,比如空間利用率不足、采光差、儲物空間欠缺等。設計師張曉紅重新進行布局,通過以下對比圖可看出:

格局改造:
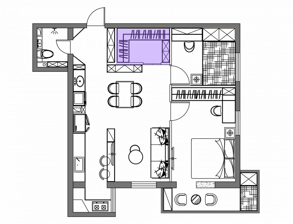
原客廳,改為主臥
原門/餐廳+廚房+次臥,改為開放式客餐廚大空間
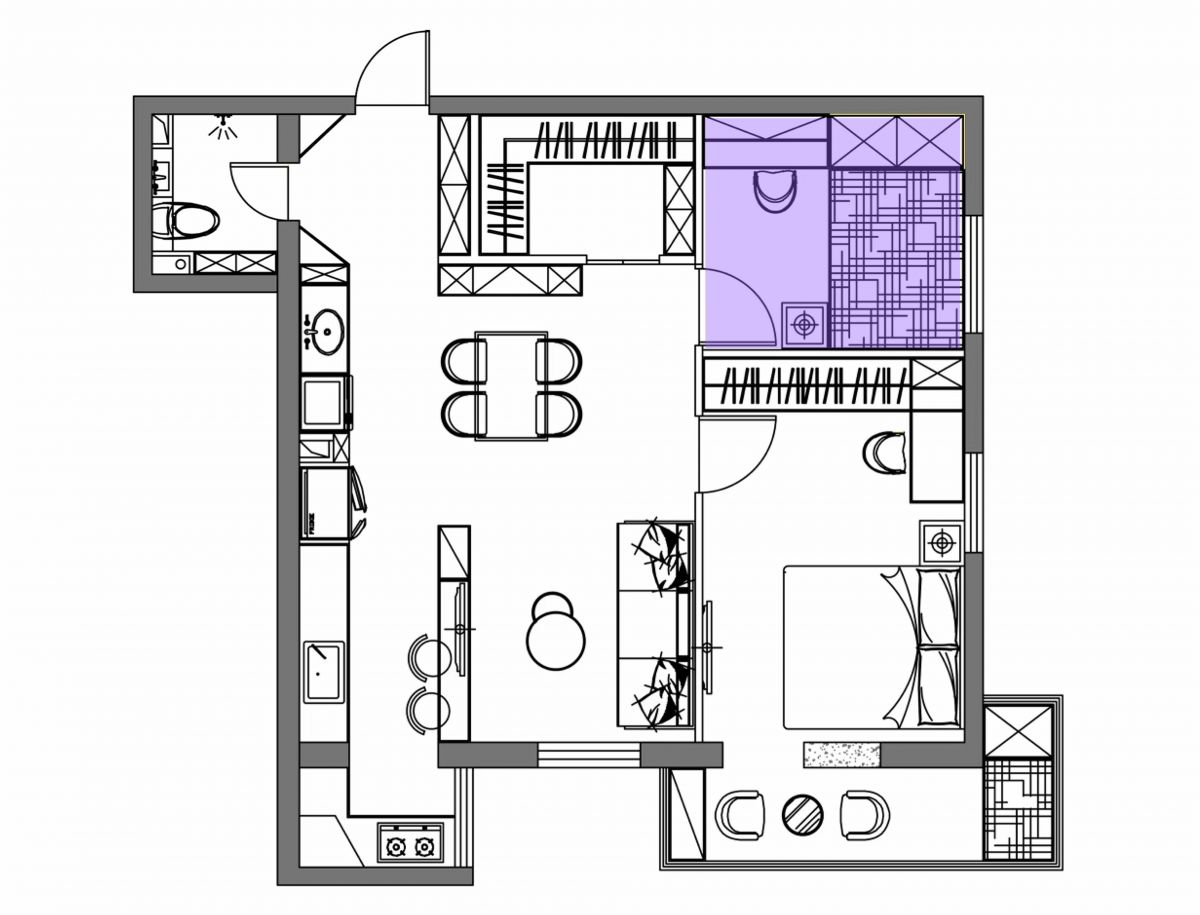
原主臥,改為次臥+U型獨立衣帽間
施工注意:
整體改造涉及建墻比較多,在施工的同時要注意做地梁,拉筋處理,以便墻體更結實。

精彩如下
改造后,曾經局促、昏暗的小家頓時變得通透明亮。現代簡約輕奢風,時尚雅致。以淺色系為主基調,擴展視覺空間。亮色點綴,增加空間靈動性。合理布局,即便滿墻收納柜,也不會感到擁擠。主臥次臥都有儲物柜+梳妝臺/書桌,外加獨立衣帽間的設計,強化儲物功能,提升空間利用率,實用性大大增加。

原門廳空間較大,但利用率較低。改造時,設計了一組頂天立地的玄關柜,可以放鞋帽、箱包、雨傘等,以及近期經常穿搭的服飾。
柜體中間為鏤空設計,不僅打破了大體量柜子的沉悶感,還可以放進出門隨手物品,非常方便。建議這里留備用電源,未來可增設裝飾燈或手機充電用。
柜子下方留空處,為每天要換的鞋預留了空位,而且方便清潔打掃。這里也可以設計感應燈,使用更方便。

將原房型次臥和廚房的一墻之隔打通,形成西廚、客廳、餐廳為一體的開放式大格局,視野更通透。
客廳與西廚之間,以半墻設計作為電視背景墻,亦是小吧臺,提升空間時尚感。既分割了兩個功能區,還多了柜子、抽屜等收納空間。
幾大區域相互借光借景,視野開闊,空間采光充沛,通風透氣性佳。在廚房忙碌的人還可以和客餐廳的家人形成互動,增進情感交流。
從另一個角度看,是餐廳、餐邊柜、干區。充足的展示收納格,讓一切變得井井有條,擺放著業主的照片、工藝品、旅游紀念品,這里也是生活的見證。
洗手盆設在廳處,更要講究顏值。量身定制,充分利用了每寸空間。米粉色的柜門,帶來浪漫的氣息。地漏做暗藏處理,保證美觀。

由餐邊柜旁邊的小門進去,便是擠出來的衣帽間。
推門而入,里面別有洞天...U型獨立衣帽間,最大限度地利用了空間,帶來強悍的儲物功能。

中廚由之前的功能陽臺改造而成,與西廚接壤。將原本浪費了的小空間又重新利用起來,實用性大大提高。
石英石的臺面,硬度高,不怕劃傷,還能耐酸堿油污。幾片花磚、粉紫色櫥柜、愛馬仕橙吧椅,為西廚小空間增加了不少異域風情,營造了閑適輕松的氛圍。
廚房陽臺窗戶做了飄窗,增加了使用臺面。在陽臺做飯更方便,油煙也不會蔓延進家。
飄窗可以放調料,墻上定制掛鉤,掛鏟勺,移動籃儲放蔬菜水果。每個角落都不浪費。

主臥則是原房型的客廳。整堵墻的定制衣柜再次升級了儲物空間,整體、大氣又美觀。
暖調的燈光,為臥室營造了溫情款款的氛圍。
衣柜、書架、書桌/梳妝臺一體化設計,無形中,為這個小空間增加了很多功能性。
色彩上更大膽,多了一些明亮的顏色,提升了時尚感。
打通臥室和陽臺之間的界限,以小吧臺代替,空間更通透明亮。陽臺也升級為休閑/儲物空間,設計了榻榻米,既滿足了業主多儲物需求,還擁有了一個喝咖啡、看書的休閑空間,生活舒適愜意。

次臥,是之前主臥的一部分,它的另一部分給了衣帽間。小空間有小空間的設計方式,但是功能區一樣不少,這就是定制家具的優勢。
定制的榻榻米、衣柜、梳妝臺一體柜,絕對是小戶型的福音,輕輕松松榨干每一寸空間。
定制的軟包床頭,打底加軟包一共3公分,做的比一般墻體腰線高,軟硬厚度剛剛好,既不占用空間,靠著也舒服。豎條裝飾,還能拉高視覺空間。
注意:床頭軟包背景墻,需要在施工時做好澳松板打底處理,目的是讓榻榻米有個床頭的效果。

洗手間僅2.46平米,空間雖小,但每處設計都很講究??兹妇G與櫻花粉的搭配,再加上黃銅元素的點綴,復古中融入了輕奢,簡直潮翻了。
小空間,對收納也毫不馬虎,吊柜、壁龕、儲物架一樣不少,將小角落充分利用。洗手間為濕區,容納了馬桶、淋浴區,還有一個迷你洗手臺方便如廁后洗手。
空間太小,洗手間沒做淋浴房,門口離淋浴區比較近,選擇金屬門,防水防潮。背景墻選取大規格瓷磚,在視覺上拉高了空間。薄貼法鋪貼,安全牢固。
老房小戶型也能裝出時尚家。如果你家也是類似戶型,或者你也喜歡這種風格,那就快快報名預約設計師,為您量身定制裝修方案,打造舒適之家。

-end-
聲明:本文由梵客家裝提供,轉載請聲明出處!
讓家一大再大的體驗
已有 86 位業主獲得服務
新用戶專享優惠